來源:滬鑫裝飾 瀏覽人數:次 更新日期:2020-11-23 14:56:00

設計理念
余嘗凈一室,置一幾,陳幾種快意書,放一本舊法帖,古鼎焚香,素麈揮塵,意思小倦,暫休竹榻----來自《小窗幽記》的描述,讓活在現代大都市的蕓蕓眾生們無不心馳神往。書中對明代文人追求的素、韻、法,三則是那個時期他們的人生境界。所以,感素人生就是本案及茗賢匯空間追溯精神源頭。
外賣區
“感素生活,"這句話聽起來很容易理解,真正的放下應該是什么呢,我以為是:一種藝術人生走過后的歸一,一種歲月生活歷練后的平淡,一種富足饕餮體味后的侘寂。的確這樣的人生應該是活懂了的人生,茗賢匯的設計演繹|藝術|茶|生活|也正是如此。
茗賢匯是一家經營茶及茶衍生的藝術品牌。 以經營中國傳統中國茶及文創類文房家具為主的獨立品牌,其中大部分為原創類產品及藝術品。
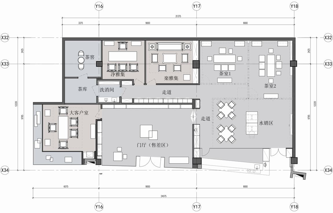
整個設計空間劃分主要有三個區域:一個外賣區,一個售賣展示區,一個VIP體驗區,一個茶歇體驗區。
售賣展示區
展賣區的設計,空間布局上的簡明扼要是我們要在展賣區表達出直接特點,陳列的貨品我們以精準為主,并不是滿眼的鋪貨。
Vip1
Vip1
Vip2
Vip3
VIP茶體驗區的設計,空間格局我們做到私密寂靜,給VIP客人熱情而不做作的隆重。空間表達以樸素的簡單線條,精到的材質肌理,厚重的色彩搭配。陳設配飾上,我們運用的設計師原創的“瘦金”系列宋式家具,藝術品上采用非物質文化遺產“榮寶齋木板水印”系列國畫。
茶歇體驗北區
茶歇體驗北區
茶歇體驗北區
茶歇體驗區的設計,空間布局上我們采用靈動、機智,把空間切塊組合。國貿周邊商務客人居多根據這個特點,我們劃分了南、北兩區,可開可合的滿足不同的人數的接待需求。空間表達,我們簡化材質,梳理線條,歸納體塊。陳設配飾上多采用方便提掛,便于搬運的食品及藝術品。
茶歇體驗南北區(半開)
茶歇體驗南北區(全開)
茶歇體驗南北區(全開)
設計嚴謹,線條明晰,著意刻畫了“素”的境界,正如陳繼儒《小窗幽記》中描述的情、靈、景、綺、倩,將文人隱士的閑情逸致和悠然自得寄托于筆墨紙硯和靈書古籍,追求“結廬松竹之間,閑云封戶;徒倚青林之下,花瓣沾衣”的閑云野鶴般的生活。呈現出文人雅士追求的人生境界,體現了其“立身高一步方超達,處世退一步方安樂”的風格。
案例風格
新中式
案例戶型
平層
案例面積
0m2
樓盤名稱
更新中
所在城市
上海
相關標簽